「せっかく注文住宅を建てるなら、広いリビングが欲しい!」
「子供たちが走り回れるような、開放的なお家にしたい!」
夢は膨らみますが、いざ土地を探し、見積もりを取ってみると……。
長岡市内の土地価格の相場や建築資材の値上がりで、「正直、そこまで大きな家は予算的に厳しいかも……」という現実に直面することもあるかもしれません。
でも、諦めないでください。
実は、「家の広さ(坪数)」と「住んで感じる広さ(開放感)」は、イコールではないんです。
たとえ30坪くらいのコンパクトなお家でも、設計の工夫次第で、40坪くらいのお家のように広く見せることができます。
アパートの「狭い、暗い、動線が悪い」というストレスを解消し、家事が劇的にラクになる。
そんな設計テクニックをご紹介します。
広く見せるコツはできるだけ「廊下をなくす」こと。
アパートや昔ながらの家には、必ず「廊下」がありますよね。
玄関からリビングへの廊下、お風呂へ行くための廊下……。
でも、よく考えてみてください。
廊下は「ただ通るだけの場所」です。ここに家族が集まってくつろぐことはありません。
限られた予算と坪数の中で、この「通るだけの場所」を極力なくして、その分をリビングに取り込んでしまったらどうでしょうか?
高性能住宅だからできる「ドアのない暮らし」
「えっ、廊下がなかったら、玄関の冷気が伝わってくるんじゃない?」
そう心配されるのも無理はありません。
でも、ここで効いてくるのが、第1回・第2回の記事でお話しした「高気密・高断熱」の性能です。
断熱性能が高いお家なら、玄関とリビングを仕切るドアをなくしても、寒く感じません。
廊下のスペースがそのままLDKと一体になるので、同じ30坪でも、視覚的な広さは劇的にアップします。

また廊下を通路だけの空間にしないように、廊下壁面にオープン収納を作るのもオススメです。
「吹き抜け」は寒い? それは昔の話です。
開放感を出すための最強のツールが「吹き抜け」です。
天井が高くなるだけで、空間のボリュームは何倍にも感じられます。
さらに、曇り空が多い長岡の冬において、高い位置にある窓から光を取り込める吹き抜けは、リビングを明るく保つためにも非常に有効です。
「吹き抜け=寒い」の誤解を解く
親御さん世代からは「吹き抜けなんて作ったら、暖房が効かなくて寒いわよ!」と反対されるかもしれません。
確かに、昔のスカスカな家(低気密・低断熱)では、暖かい空気が全部上に逃げてしまい、1階は底冷えしました。
しかし、今の高性能住宅では逆です。
「吹き抜けは、家全体の空気を循環させるための装置」になります。
1階のエアコンで暖めた空気が吹き抜けを通って2階へ上がり、シーリングファンでゆっくり循環させる。
これによって、「1階のリビングも、2階の寝室も、温度差がなくずっと暖かい」という環境が作れるのです。
2階で遊ぶ子どもたちの笑い声が、キッチンにいるママにも届く。
「ご飯だよ〜!」と呼べば、すぐに返事が返ってくる。
吹き抜けは、家族の絆を繋ぐ役割も果たしてくれます。

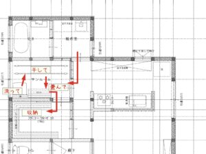
行き止まりなし! 子どもも大喜びの「回遊動線(かいゆうどうせん)」
アパート暮らしのママの悩みで多いのが、
「洗濯機を回して、ベランダに干して、キッチンに戻って……あっちに行ったりこっちに来たり、移動だけで疲れちゃう!」
という「家事動線の悪さ」です。
そこで取り入れたいのが、家の中に行き止まりを作らない「回遊動線(ぐるぐる回れる間取り)」です。
ママには「時短」、子どもには「遊び場」
例えば、こんな間取りはいかがでしょうか?
- キッチンを中心に置く。
- キッチンの左に行くと「洗面脱衣室・ランドリー」へ。
- キッチンの右に行くと「ダイニング・リビング」へ。
- ランドリーとリビングも繋がっている。
つまり、キッチンを中心に「8の字」や「円」を描くように動けるのです。
これなら、料理の合間に洗濯物を干すのも最短距離。後ろを振り返ればすぐにダイニングテーブル。家事の歩数が激減します。
そして、この「行き止まりのない間取り」は、子供たちにとって最高の遊び場になります。
兄弟でぐるぐる追いかけっこをするだけで、雨や雪の日でも運動不足解消!
「キャッキャ」と走り回る子供たちを見ながら、リビングでコーヒーを飲む。そんな余裕のある暮らしが叶います。

30坪でも収納は諦めない。「ファミリークローゼット」の魔術
「家を小さくすると、収納が足りなくなるんじゃ……」
それも大きな不安ですよね。
確かに各部屋に個別のクローゼットを設けるには、広さ的には厳しいかもしれません。
でも、各部屋に大きなクローゼットを作るよりも、「ファミリークローゼット(家族共有の収納)」を1つ作った方が、省スペースで使い勝手が良いことをご存知ですか?
「洗う・干す・しまう」を1ヶ所で完結。
おすすめは、ランドリールームのすぐ隣にファミリークローゼットを配置すること。
- ランドリールームで洗濯物を洗って干す。
- 乾いたら、ハンガーのまま隣のファミリークローゼットへ移動。
- 完了!
これなら、わざわざ2階のそれぞれの部屋まで洗濯物を運びに行く必要がありません。
「たたむ」という家事すら、ほとんどなくなります。
限られた30坪という面積を、「廊下」や「個室の収納」に使うのではなく、「家族が過ごす場所」と「家事を楽にする場所」に集中させる。
これが、コンパクトでも豊かに暮らすための設計の極意です。
まとめ:広さは「坪数」ではなく「設計」で決まる。
「30坪だから狭い」「40坪だから広い」とは限りません。
どんなに大きくても、廊下が多く寒くて暗い家より、
コンパクトでも、暖かくて明るく、家族がどこにいても繋がれる家の方が、きっと毎日の幸福度は高いはずです。
私たちオーゴシ建設が得意とするのは、「無駄を削ぎ落とし、家族の時間を最大化する設計」です。
「今の予算で、どれくらいの家が建つの?」
「私たちの生活スタイルなら、どんな間取りがいいの?」
もし迷っているなら、ぜひ一度ご相談ください。
紙の上の図面だけでなく、これまでの施工事例をお見せしながら、「あ、これなら広く感じる!」という驚きのプランをご提案します。
▼あわせて読みたい記事
\実際のモデルルームを体験する/
